CA GOMIS

12 dwellings in Alcover

Exterior edificio en Alcover antes de Rehabilitación en proyecto de arquitectura de Anvar Studio
Exterior photo 1
Ca Gomis Exterior photo 3
Interior photo 2
Interior photo 6
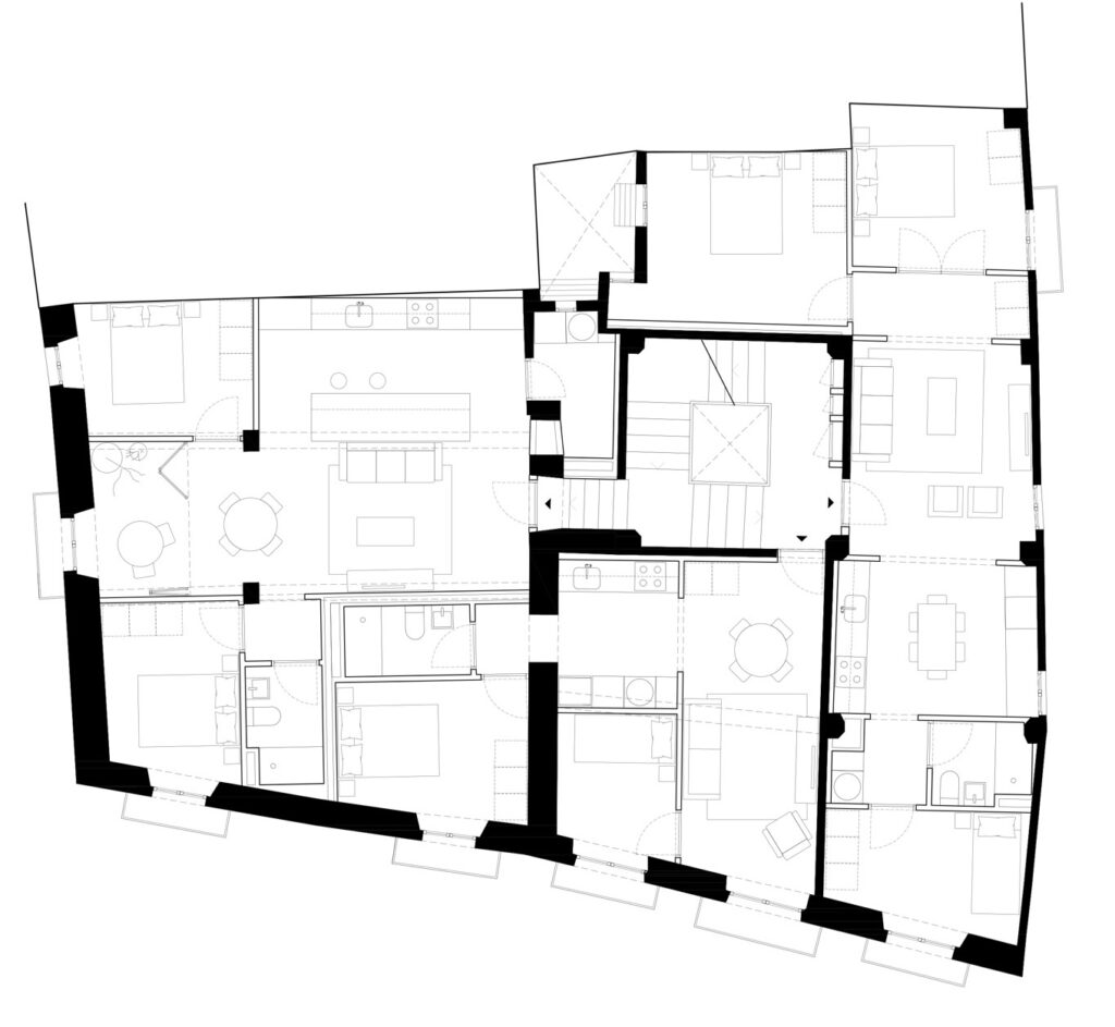
Floorplan proyecto Ca Gomis, en Alcover, de Anvar Studio
Interior photo 10
Interior photo 9
Interior photo 8
Interior photo 4
Interior photo 3
Interior photo 1
Exterior photo 2

This project involves the comprehensive refurbishment of two adjacent buildings within the historic centre of Alcover, forming a distinctive urban entity with façades addressing three streets. The building’s origin dates back to the 18th century, with its current configuration resulting from a phased growth that generated a complex geometry.

The intervention begins with the recognition of this pre-existence as the core value. Externally, the reading of the historic strata is enhanced through the façade treatment, where the combined use of stone and ceramic brick makes the superposition of construction techniques and stages visible. The protected status of the façades guides the project toward optimising the internal conditions based on the existing openings.

The original structure of load-bearing walls and ceramic pillars, with timber floors and revoltons (brick vaults), is maintained as the primary support. The internal organisation is built upon a direct reading of this structure, minimising compartmentalisation. The geometrical irregularity thus becomes a design tool, embraced as an essential part of the building’s identity.

The complex is organised into three dwellings per floor, each with a specific configuration adapted to the geometries and façade openings. To ensure excellent environmental conditions, the design focuses on maximising natural light ingress and cross-ventilation, leveraging the building’s triple orientation.

A central staircase, vertically connecting the complex, acts as the structural backbone. Beyond its distributive function, this space is conceived as a void that structures communal life. Zenithal light, introduced via skylights, reinforces the character of this space as the project’s nerve centre.

The refurbishment is conceived as an operation of continuity, where the existing architecture is preserved and made visible, integrating new ways of dwelling without relinquishing the built memory of the place.

Alcover, 2024-Ongoing

Private client

Photography by ANVAR

With Carla Bria

CA GOMIS

12 dwellings in Alcover

Exterior edificio en Alcover antes de Rehabilitación en proyecto de arquitectura de Anvar Studio
Exterior photo 1
Ca Gomis Exterior photo 3
Interior photo 2
Interior photo 6
Floorplan proyecto Ca Gomis, en Alcover, de Anvar Studio
Interior photo 10
Interior photo 9
Interior photo 8
Interior photo 4
Interior photo 3
Interior photo 1
Exterior photo 2

This project involves the comprehensive refurbishment of two adjacent buildings within the historic centre of Alcover, forming a distinctive urban entity with façades addressing three streets. The building’s origin dates back to the 18th century, with its current configuration resulting from a phased growth that generated a complex geometry.

The intervention begins with the recognition of this pre-existence as the core value. Externally, the reading of the historic strata is enhanced through the façade treatment, where the combined use of stone and ceramic brick makes the superposition of construction techniques and stages visible. The protected status of the façades guides the project toward optimising the internal conditions based on the existing openings.

The original structure of load-bearing walls and ceramic pillars, with timber floors and revoltons (brick vaults), is maintained as the primary support. The internal organisation is built upon a direct reading of this structure, minimising compartmentalisation. The geometrical irregularity thus becomes a design tool, embraced as an essential part of the building’s identity.

The complex is organised into three dwellings per floor, each with a specific configuration adapted to the geometries and façade openings. To ensure excellent environmental conditions, the design focuses on maximising natural light ingress and cross-ventilation, leveraging the building’s triple orientation.

A central staircase, vertically connecting the complex, acts as the structural backbone. Beyond its distributive function, this space is conceived as a void that structures communal life. Zenithal light, introduced via skylights, reinforces the character of this space as the project’s nerve centre.

The refurbishment is conceived as an operation of continuity, where the existing architecture is preserved and made visible, integrating new ways of dwelling without relinquishing the built memory of the place.

Alcover, 2024-Ongoing

Private client

Photography: ANVAR

With Carla Bria

PROJECTS

PLAÇA DE L’ALZINA

Portada Proyecto PLAÇA DE L'ALZINA de Anvar Studio
Portada Proyecto PLAÇA DE L'ALZINA de Anvar Studio

PLAÇA DE L’ALZINA

SALA RIO CINCA

portada abstracta Proyecto Sala Río Cinca de Anvar Studio
Puertas Proyecto Sala Río Cinca de Anvar Studio
Puertas Proyecto Sala Río Cinca de Anvar Studio

SALA RIO CINCA

SOL I OMBRA

Sol i Ombra, pérgola de madera diseñada por Anvar Studio para crear sombra y confort en el jardín
Sol i Ombra, pérgola de madera diseñada por Anvar Studio para crear sombra y confort en el jardín

SOL I OMBRA

MODULE HOUSE

Vivienda modular República Dominicana proyecto de arquitectura de Anvar Studio
Vivienda modular República Dominicana proyecto de arquitectura de Anvar Studio

MODULE HOUSE

FINESTRES AL PARC

Finestres al Parc proyecto de arquitectura de Anvar Studio
Finestres al Parc proyecto de arquitectura de Anvar Studio

FINESTRES AL PARC

TRIÀDIC

TRIÀDIC

VOLART

Proyecto Volart diseño arquitectónico contemporáneo por Anvar Arquitectura
Proyecto Volart diseño arquitectónico contemporáneo por Anvar Arquitectura

VOLART

CA GOMIS

Portada de Ca Gomis, proyecto de rehabilitación en Alcover de Anvar Studio
Portada de Ca Gomis, proyecto de rehabilitación en Alcover de Anvar Studio

CA GOMIS

PALM HOUSE

Palm House, proyecto de Anvar Studio que combina arquitectura, diseño y sostenibilidad en un espacio contemporáneo adaptado a su entorno.
Palm House, proyecto de Anvar Studio que combina arquitectura, diseño y sostenibilidad en un espacio contemporáneo adaptado a su entorno.

PALM HOUSE

MURALLA SANT ANTONI

MURALLA SANT ANTONI

O-MAKASE

O-MAKASE

CA GOMIS

Edificio rehabilitado en proyecto Ca Gomis, de Anvar Studio
Edificio rehabilitado en proyecto Ca Gomis, de Anvar Studio

CA GOMIS

GALLERY HOUSE

GALLERY HOUSE

VOLART

Volart proyecto de arquitectura de Anvar Studio
Volart proyecto de arquitectura de Anvar Studio

VOLART

CASA DE LES OBLATES

CASA DE LES OBLATES

METABÒLIC CAMPUS

Metabòlic Campus proyecto de arquitectura de Anvar Studio
Metabòlic Campus proyecto de arquitectura de Anvar Studio

METABÒLIC CAMPUS

proyecto de arquitectura de Anvar Studio
proyecto de arquitectura de Anvar Studio