MODULE HOUSE

Prototype building for prefabricated social housing

Exterior Vivienda modular República Dominicana proyecto de arquitectura de Anvar Studio
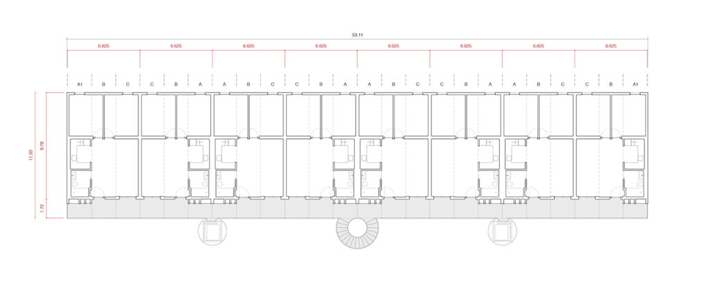
Floorplan
Section
Construction structure Vivienda modular República Dominicana diseño arquitectónico contemporáneo por Anvar Arquitectura
Aggregations
Interior image
Axonometric assembly
Axonometry modules
Transport of the modules

The project emerges as a response to the housing crisis in the Dominican Republic, where access to adequate housing is a challenge due to the scarcity of materials and the lack of skilled labor. These conditions significantly slow down construction times, causing buildings to take years to be completed.

To address this issue, the project is based on three fundamental premises: ensuring dignified housing, reducing execution time, and optimizing manufacturing costs. The proposed solution consists of an industrialized housing system with a steel structure, manufactured in Spain by a company specialized in prefabrication. This strategy allows easy access to materials and labor but introduces a key constraint: transportation. To make the proposal viable, the modules must be designed with dimensions suitable for shipping in maritime containers (2.20×11.50×3.00 m), giving the project a universal character and making it adaptable to different contexts.

Each housing unit consists of three modules. The first module concentrates all essential installations (bathroom, kitchen, drainage, and utility connections). The central module, open on its sides, generates access and connection between spaces, while the third module encloses the structure and houses part of the living room. The internal layout is efficient and functional, following a clear scheme: entry via a walkway leading to the living room, followed by the kitchen, a bathroom, and two equalsized bedrooms, enhancing versatility. The walkway not only serves as circulation and access to the housing units but also acts as a semi-private outdoor space.

To ensure comfort in the tropical climate, passive bioclimatic strategies are incorporated, such as cross ventilation, effective thermal insulation, ceiling fans, and solar protections.

The flexibility of the modular system allows for multiple configurations and groupings, adapting to various regulations and site conditions. The project is currently in the process of seeking investors and acquiring land in the Dominican Republic for its development.

Variable location, 2023

Private client

Photography by ANVAR

MODULE HOUSE

Prototype building for prefabricated social housing

Exterior Vivienda modular República Dominicana proyecto de arquitectura de Anvar Studio
Floorplan
Section
Construction structure Vivienda modular República Dominicana diseño arquitectónico contemporáneo por Anvar Arquitectura
Aggregations
Interior image
Axonometric assembly
Axonometry modules
Transport of the modules

The project emerges as a response to the housing crisis in the Dominican Republic, where access to adequate housing is a challenge due to the scarcity of materials and the lack of skilled labor. These conditions significantly slow down construction times, causing buildings to take years to be completed.

To address this issue, the project is based on three fundamental premises: ensuring dignified housing, reducing execution time, and optimizing manufacturing costs. The proposed solution consists of an industrialized housing system with a steel structure, manufactured in Spain by a company specialized in prefabrication. This strategy allows easy access to materials and labor but introduces a key constraint: transportation. To make the proposal viable, the modules must be designed with dimensions suitable for shipping in maritime containers (2.20×11.50×3.00 m), giving the project a universal character and making it adaptable to different contexts.

Each housing unit consists of three modules. The first module concentrates all essential installations (bathroom, kitchen, drainage, and utility connections). The central module, open on its sides, generates access and connection between spaces, while the third module encloses the structure and houses part of the living room. The internal layout is efficient and functional, following a clear scheme: entry via a walkway leading to the living room, followed by the kitchen, a bathroom, and two equalsized bedrooms, enhancing versatility. The walkway not only serves as circulation and access to the housing units but also acts as a semi-private outdoor space.

To ensure comfort in the tropical climate, passive bioclimatic strategies are incorporated, such as cross ventilation, effective thermal insulation, ceiling fans, and solar protections.

The flexibility of the modular system allows for multiple configurations and groupings, adapting to various regulations and site conditions. The project is currently in the process of seeking investors and acquiring land in the Dominican Republic for its development.

Variable location, 2023

Private client

Photography: ANVAR

PROJECTS

PLAÇA DE L’ALZINA

Portada Proyecto PLAÇA DE L'ALZINA de Anvar Studio
Portada Proyecto PLAÇA DE L'ALZINA de Anvar Studio

PLAÇA DE L’ALZINA

SALA RIO CINCA

portada abstracta Proyecto Sala Río Cinca de Anvar Studio
Puertas Proyecto Sala Río Cinca de Anvar Studio
Puertas Proyecto Sala Río Cinca de Anvar Studio

SALA RIO CINCA

SOL I OMBRA

Sol i Ombra, pérgola de madera diseñada por Anvar Studio para crear sombra y confort en el jardín
Sol i Ombra, pérgola de madera diseñada por Anvar Studio para crear sombra y confort en el jardín

SOL I OMBRA

MODULE HOUSE

Vivienda modular República Dominicana proyecto de arquitectura de Anvar Studio
Vivienda modular República Dominicana proyecto de arquitectura de Anvar Studio

MODULE HOUSE

FINESTRES AL PARC

Finestres al Parc proyecto de arquitectura de Anvar Studio
Finestres al Parc proyecto de arquitectura de Anvar Studio

FINESTRES AL PARC

TRIÀDIC

TRIÀDIC

VOLART

Proyecto Volart diseño arquitectónico contemporáneo por Anvar Arquitectura
Proyecto Volart diseño arquitectónico contemporáneo por Anvar Arquitectura

VOLART

CA GOMIS

Portada de Ca Gomis, proyecto de rehabilitación en Alcover de Anvar Studio
Portada de Ca Gomis, proyecto de rehabilitación en Alcover de Anvar Studio

CA GOMIS

PALM HOUSE

Palm House, proyecto de Anvar Studio que combina arquitectura, diseño y sostenibilidad en un espacio contemporáneo adaptado a su entorno.
Palm House, proyecto de Anvar Studio que combina arquitectura, diseño y sostenibilidad en un espacio contemporáneo adaptado a su entorno.

PALM HOUSE

MURALLA SANT ANTONI

MURALLA SANT ANTONI

O-MAKASE

O-MAKASE

CA GOMIS

Edificio rehabilitado en proyecto Ca Gomis, de Anvar Studio
Edificio rehabilitado en proyecto Ca Gomis, de Anvar Studio

CA GOMIS

GALLERY HOUSE

GALLERY HOUSE

VOLART

Volart proyecto de arquitectura de Anvar Studio
Volart proyecto de arquitectura de Anvar Studio

VOLART

CASA DE LES OBLATES

CASA DE LES OBLATES

METABÒLIC CAMPUS

Metabòlic Campus proyecto de arquitectura de Anvar Studio
Metabòlic Campus proyecto de arquitectura de Anvar Studio

METABÒLIC CAMPUS

proyecto de arquitectura de Anvar Studio
proyecto de arquitectura de Anvar Studio