O-MAKASE
Interior renovation of a commercial space in Barcelona









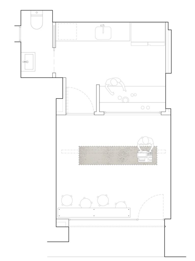
The intervention consists of the full refurbishment of a very small premises to convert it into a take-away establishment specialized in Japanese cuisine. The project places emphasis on a careful selection of materials and a precise attention to detail that elevates a minimal space, turning it into a functional, clean environment aligned with the aesthetics of Japanese gastronomy.
The proposal begins with the demolition of the existing partitions to regularize the interior geometry and improve spatial perception. The entrance area is cleared out as much as possible to accommodate a new sales counter: a stone volume with a defined, precise cut that becomes the central element of the public space. This operation allows for a clear reading of the premises and establishes a direct relationship between the street, customers, and food preparation.
The kitchen workshop is separated from the sales area by a new partition clad in stainless-steel sheeting. A new opening and pass-through maintain visual contact between chef and customer, reinforcing the idea of transparency in the culinary process. In the rear area, the kitchen is reorganized and fitted with new stainless-steel furniture and finishes, optimizing hygiene, durability, and functionality.
The interior space is thus dignified, gaining light, efficiency, and a direct visual relationship with the exterior.
On the façade, a new enclosure in glass and stainless steel is built, consistently using raw, noble materials that define a neat, honest, and contemporary establishment. The aim is to convey simplicity and precision, highlighting the quality of the product and the care taken in its preparation.
Barcelona, 2024. Unbuilt
Private client
Photography by ANVAR
O-MAKASE
Interior renovation of a commercial space in Barcelona









The intervention consists of the full refurbishment of a very small premises to convert it into a take-away establishment specialized in Japanese cuisine. The project places emphasis on a careful selection of materials and a precise attention to detail that elevates a minimal space, turning it into a functional, clean environment aligned with the aesthetics of Japanese gastronomy.
The proposal begins with the demolition of the existing partitions to regularize the interior geometry and improve spatial perception. The entrance area is cleared out as much as possible to accommodate a new sales counter: a stone volume with a defined, precise cut that becomes the central element of the public space. This operation allows for a clear reading of the premises and establishes a direct relationship between the street, customers, and food preparation.
The kitchen workshop is separated from the sales area by a new partition clad in stainless-steel sheeting. A new opening and pass-through maintain visual contact between chef and customer, reinforcing the idea of transparency in the culinary process. In the rear area, the kitchen is reorganized and fitted with new stainless-steel furniture and finishes, optimizing hygiene, durability, and functionality.
The interior space is thus dignified, gaining light, efficiency, and a direct visual relationship with the exterior.
On the façade, a new enclosure in glass and stainless steel is built, consistently using raw, noble materials that define a neat, honest, and contemporary establishment. The aim is to convey simplicity and precision, highlighting the quality of the product and the care taken in its preparation.
Barcelona, 2024. Unbuilt
Private client
Photography: ANVAR
PROJECTS









































