CASA DE LES OBLATES
Rehabilitation of an ecclesiastical residence in Tarragona









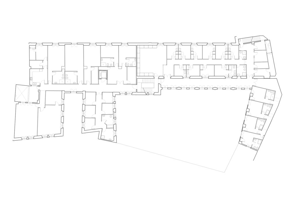
The Casa Oblates project concerns the transformation of a historic building situated in the heart of Tarragona’s Part Alta (Old Town). Adjoined to the Roman wall and incorporating the ancient Torre de Minerva, this heavily layered and protected context was formerly home to the community of the Oblates sisters.
The intervention is driven by a desire to recover and reprogramme the structure, converting it into a residential home for retired priests, balancing private living quarters with communal life. The primary challenge was the reorganisation of the floor plates and their functions via a critical reading that respects the accumulated historical architecture.
The proposal is founded upon a clear spatial redistribution. The more open activity areas are concentrated in the west wing, linked to an internal, south-facing courtyard that serves as a light and ventilation lung. The communal spaces, such as the dining room and living room, open up to the south, capturing key vistas over the city and the sea.
For the private accommodation, the design opts for the creation of small apartments that strike a balance between autonomy and simplicity. Each unit is organised with a sitting area and a bedroom/study, separated by a lightweight central core built from timber. This core accommodates the services and is intentionally designed to be low to preserve the visual continuity and the original ceiling height of the spaces.
The operation employs a lightweight approach to avoid any increase in structural loads, thereby preventing modification to the historical structure. The original vaults are recovered and reinterpreted to reduce weight, utilising a language of vertical timber uprights that introduces formal order to the new intervention.
The project effectively reduces fragmentation and reinstates the dignity of the spaces. A comprehensive energy efficiency upgrade is integrated as an invisible modernisation that preserves the protected external envelope. Casa Oblates is thus conceived as an exercise in care and continuity, successfully imbuing a historic building with new life without erasing its profound memory.
Tarragona, 2023-Ongoing
Arquebisbat de Tarragona
Photography by ANVAR
With Carla Bria
CASA DE LES OBLATES
Rehabilitation of an ecclesiastical residence in Tarragona









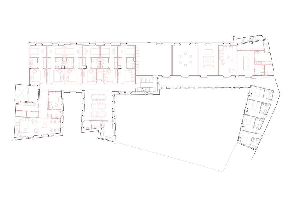
The Casa Oblates project concerns the transformation of a historic building situated in the heart of Tarragona’s Part Alta (Old Town). Adjoined to the Roman wall and incorporating the ancient Torre de Minerva, this heavily layered and protected context was formerly home to the community of the Oblates sisters.
The intervention is driven by a desire to recover and reprogramme the structure, converting it into a residential home for retired priests, balancing private living quarters with communal life. The primary challenge was the reorganisation of the floor plates and their functions via a critical reading that respects the accumulated historical architecture.
The proposal is founded upon a clear spatial redistribution. The more open activity areas are concentrated in the west wing, linked to an internal, south-facing courtyard that serves as a light and ventilation lung. The communal spaces, such as the dining room and living room, open up to the south, capturing key vistas over the city and the sea.
For the private accommodation, the design opts for the creation of small apartments that strike a balance between autonomy and simplicity. Each unit is organised with a sitting area and a bedroom/study, separated by a lightweight central core built from timber. This core accommodates the services and is intentionally designed to be low to preserve the visual continuity and the original ceiling height of the spaces.
The operation employs a lightweight approach to avoid any increase in structural loads, thereby preventing modification to the historical structure. The original vaults are recovered and reinterpreted to reduce weight, utilising a language of vertical timber uprights that introduces formal order to the new intervention.
The project effectively reduces fragmentation and reinstates the dignity of the spaces. A comprehensive energy efficiency upgrade is integrated as an invisible modernisation that preserves the protected external envelope. Casa Oblates is thus conceived as an exercise in care and continuity, successfully imbuing a historic building with new life without erasing its profound memory.
Tarragona, 2023-Ongoing
Arquebisbat de Tarragona
Photography: ANVAR
With Carla Bria
PROJECTS









































