MURALLA SANT ANTONI
9 dwellings in Valls










The project focuses on the recovery of a listed 19th-century building, situated in the dense historic centre of Valls, featuring a classical four-bay façade.
The intervention is driven by a commitment to reinstate the structure’s original architectural logic, conceived as a framework capable of adapting to new ways of dwelling. The building had accumulated arbitrary partitions which severely fragmented the space. The proposal initiates a process of clearing and refinement to rediscover the structural axes that give coherence to the whole. The objective is to order, clarify, and reintroduce dignity to the spaces.
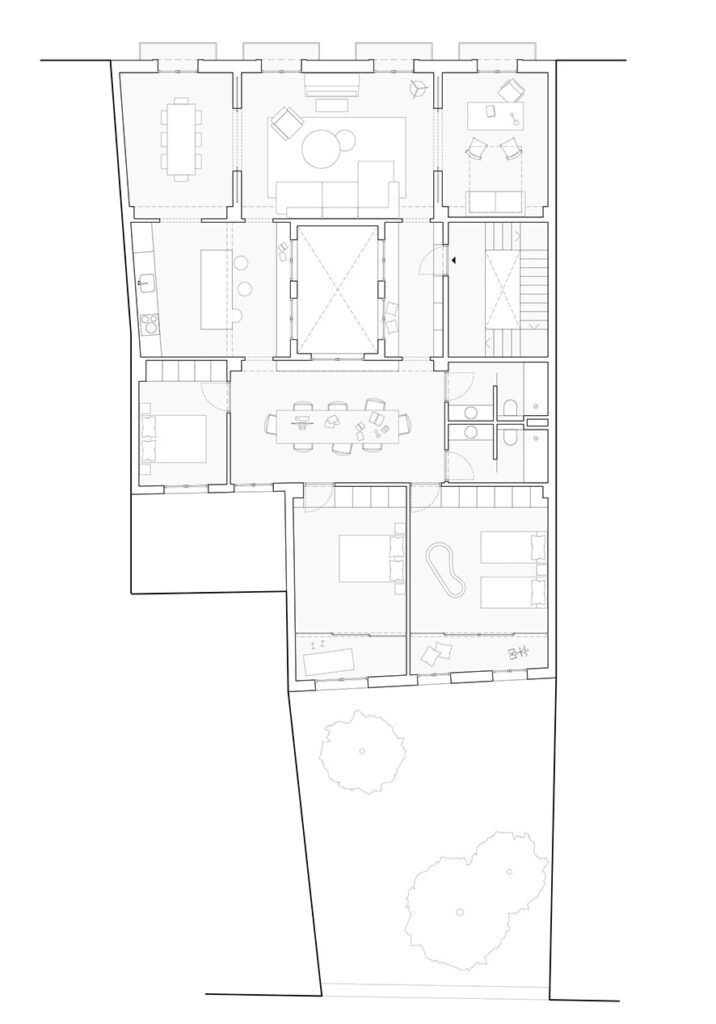
The project hinges on the rehabilitation of two essential voids crucial for environmental quality. First, the large existing rear courtyard is recovered as a breathable, open space. All precarious extensions are removed, restoring its condition as a generous void, capable of providing light, air, and cross-ventilation to the dwellings. Furthermore, the ground floor unit is conceived as a studio/workshop directly linked to this garden.
Concurrently, a new inner courtyard is created at the centre of the building. This new opening acts as an organising element: it provides natural ventilation and illumination to all rooms and establishes a new central focus. The main floor apartment is organised continuously, almost circularly, around this patio. This generates a sequence of connected spaces allowing for a fluid, transversal experience with crossed views. On the upper floors, smaller, more adaptable apartments are proposed, maintaining their relationship with the internal patio.
The intervention conserves the structural system and restores the façade, recovering original mouldings and solar shading elements to reinforce the rhythmic reading of the openings. The project avoids imposing a new image, choosing instead to work from continuity, ensuring that light, void, and proportion are coherent with the pre-existing order.
Valls, 2023-Ongoing
Private client
Photography by ANVAR
With Carla Bria
MURALLA SANT ANTONI
9 dwellings in Valls










The project focuses on the recovery of a listed 19th-century building, situated in the dense historic centre of Valls, featuring a classical four-bay façade.
The intervention is driven by a commitment to reinstate the structure’s original architectural logic, conceived as a framework capable of adapting to new ways of dwelling. The building had accumulated arbitrary partitions which severely fragmented the space. The proposal initiates a process of clearing and refinement to rediscover the structural axes that give coherence to the whole. The objective is to order, clarify, and reintroduce dignity to the spaces.
The project hinges on the rehabilitation of two essential voids crucial for environmental quality. First, the large existing rear courtyard is recovered as a breathable, open space. All precarious extensions are removed, restoring its condition as a generous void, capable of providing light, air, and cross-ventilation to the dwellings. Furthermore, the ground floor unit is conceived as a studio/workshop directly linked to this garden.
Concurrently, a new inner courtyard is created at the centre of the building. This new opening acts as an organising element: it provides natural ventilation and illumination to all rooms and establishes a new central focus. The main floor apartment is organised continuously, almost circularly, around this patio. This generates a sequence of connected spaces allowing for a fluid, transversal experience with crossed views. On the upper floors, smaller, more adaptable apartments are proposed, maintaining their relationship with the internal patio.
The intervention conserves the structural system and restores the façade, recovering original mouldings and solar shading elements to reinforce the rhythmic reading of the openings. The project avoids imposing a new image, choosing instead to work from continuity, ensuring that light, void, and proportion are coherent with the pre-existing order.
Valls, 2023-Ongoing
Private client
Photography: ANVAR
With Carla Bria
PROJECTS









































