FINESTRES AL PARC
40 social housing units in Tiana













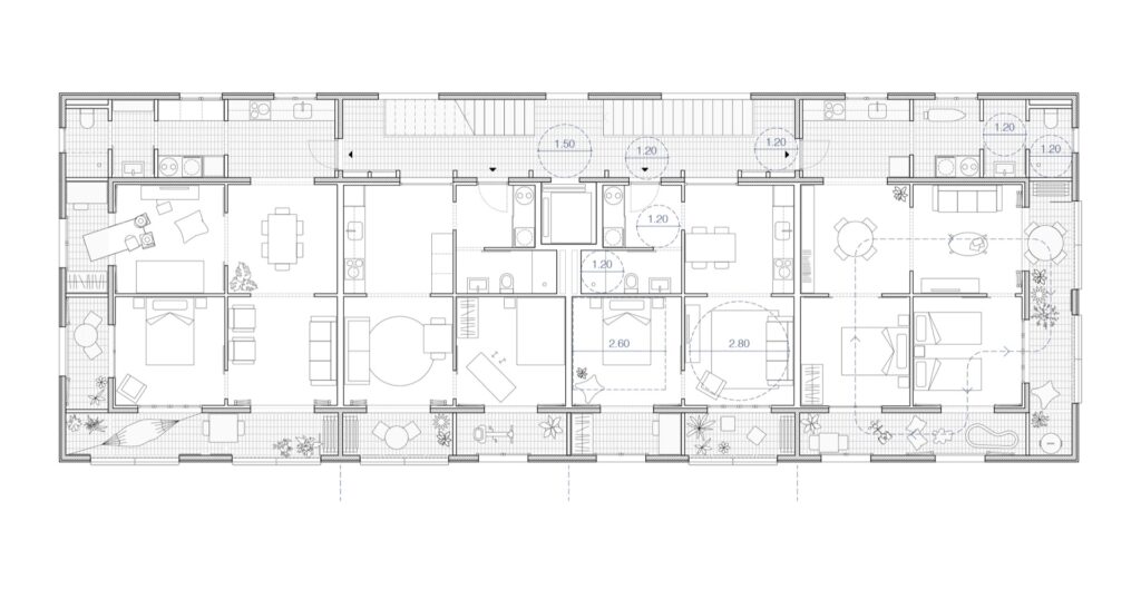
The project proposes a residential complex integrated into the urban and natural environment, with four compact buildings (ground floor + 2) that adapt to the topography and generate an urban park with public, community, and green spaces. The fragmentation of volumes improves visual permeability, optimizes bioclimatic orientation, and strengthens connections with facilities such as Espai Diòptria, which serves as the central social hub.
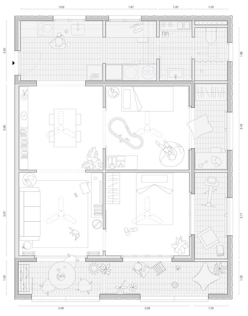
The buildings are conceived as small communities, with flexible, modular, and bioclimatic dwellings organized around a peripheral ring of intermediate spaces (galleries, porches, thermal buffers) that enhance comfort, adaptability, and connection to the Mediterranean climate. Construction is designed to be industrialized and sustainable, using prefabricated concrete modules and CLT slabs, with insulated façades and compact envelopes.
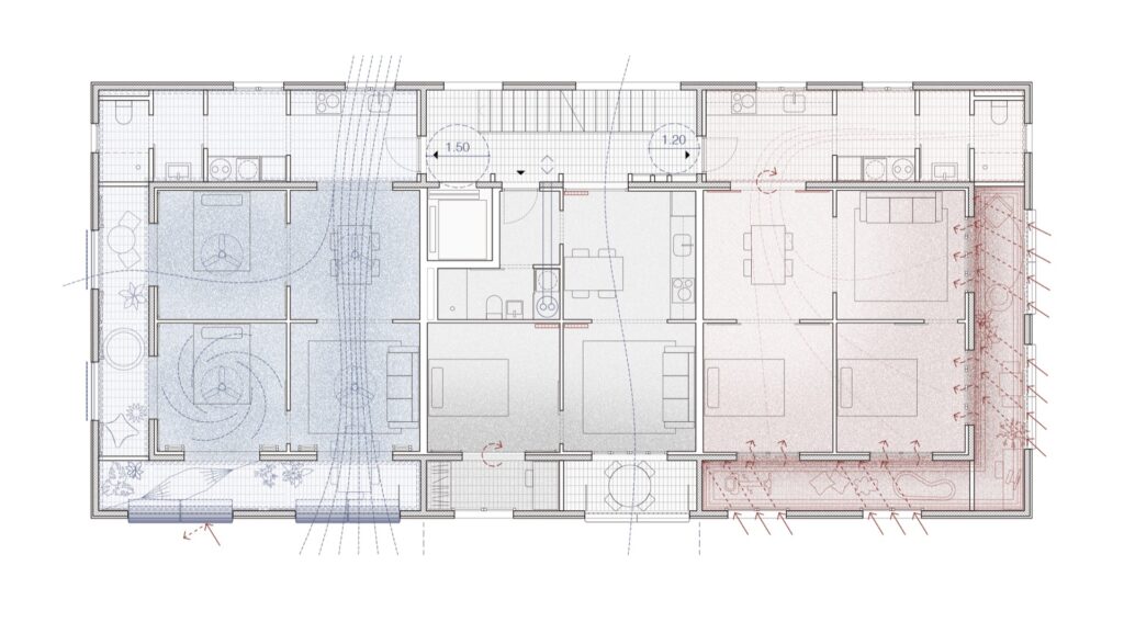
The energy strategy relies on passive solutions (orientation, thermal mass, cross ventilation, natural shading) and renewable sources, achieving a net-zero energy balance through photovoltaic generation. The life cycle approach prioritizes durable, natural, and low-impact materials, as well as the reuse of rainwater and greywater.
Overall, the proposal aims to create a strong neighborhood identity, foster social cohesion, and provide sustainable, healthy, and adaptable housing.
Tiana, Barcelona, 2025
IMPSOL
Competition 2º Prize
FINESTRES AL PARC
40 social housing units in Tiana













The project proposes a residential complex integrated into the urban and natural environment, with four compact buildings (ground floor + 2) that adapt to the topography and generate an urban park with public, community, and green spaces. The fragmentation of volumes improves visual permeability, optimizes bioclimatic orientation, and strengthens connections with facilities such as Espai Diòptria, which serves as the central social hub.
The buildings are conceived as small communities, with flexible, modular, and bioclimatic dwellings organized around a peripheral ring of intermediate spaces (galleries, porches, thermal buffers) that enhance comfort, adaptability, and connection to the Mediterranean climate. Construction is designed to be industrialized and sustainable, using prefabricated concrete modules and CLT slabs, with insulated façades and compact envelopes.
The energy strategy relies on passive solutions (orientation, thermal mass, cross ventilation, natural shading) and renewable sources, achieving a net-zero energy balance through photovoltaic generation. The life cycle approach prioritizes durable, natural, and low-impact materials, as well as the reuse of rainwater and greywater.
Overall, the proposal aims to create a strong neighborhood identity, foster social cohesion, and provide sustainable, healthy, and adaptable housing.
Tiana, Barcelona, 2025
IMPSOL
Competition 2º Prize
PROJECTS









































