GALLERY HOUSE
Single-family house and 2 apartments in Alcover













A dwelling through time.
The house is conceived as a place capable of accompanying the evolution of family life. It is imagined as a flexible architecture, able to adapt over time and offer the children increasing independence without losing the cohesion of the family unit. Its organisation is based on three inhabitable units: the main dwelling, connected to the garden, and two adjacent volumes that can eventually function as fully autonomous homes for the children.
In a context defined by party walls and cold winters, the project prioritises southern orientation. Large glazed galleries span the full width of the plot, acting as intermediate spaces that capture heat, regulate solar radiation, and create a thermal gradient. Their climatic behaviour is controlled through fully operable openings and traditional persianes alacantines, allowing these galleries to be used comfortably throughout the year.
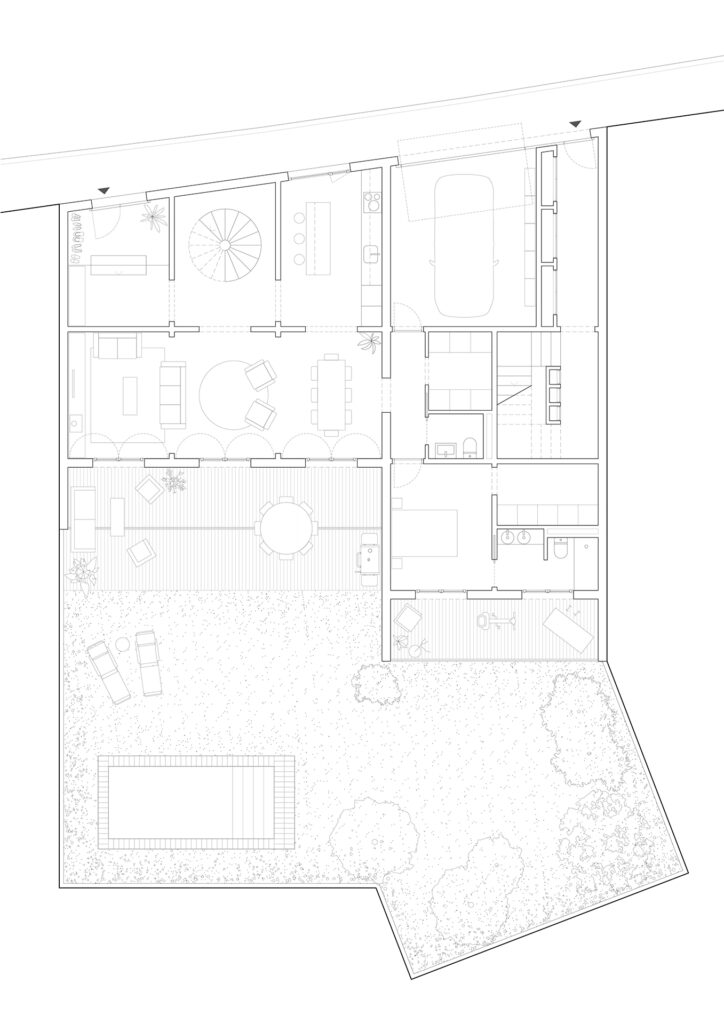
The structure is resolved with ceramic load-bearing walls that establish a clear, regular order. The openings follow a principle of balance, generating a steady rhythm on the façade. At the centre, a circular staircase articulates the whole and organises circulation.
The ground floor concentrates everyday life and opens to the garden through a porch that acts as a habitable threshold. The openings allow it to transform: a gallery in winter, an open outdoor space in summer. The main bedroom is placed in a separate bay to ensure privacy.
The first floor is dedicated to the children, with their own living area that encourages autonomy. The adjacent volumes have independent access, allowing them to operate as separate dwellings if needed.
Materiality roots the house to its context: ceramic masonry, reclaimed stone, and timber joinery define a sober, traditionally inspired character. The lower façade, largely opaque, offers glimpses of the garden and reinforces the introspective nature of the home.
Alcover, Tarragona, 2022-Ongoing
Private client
With Carla Bria
GALLERY HOUSE
Single-family house and 2 apartments in Alcover













A dwelling through time.
The house is conceived as a place capable of accompanying the evolution of family life. It is imagined as a flexible architecture, able to adapt over time and offer the children increasing independence without losing the cohesion of the family unit. Its organisation is based on three inhabitable units: the main dwelling, connected to the garden, and two adjacent volumes that can eventually function as fully autonomous homes for the children.
In a context defined by party walls and cold winters, the project prioritises southern orientation. Large glazed galleries span the full width of the plot, acting as intermediate spaces that capture heat, regulate solar radiation, and create a thermal gradient. Their climatic behaviour is controlled through fully operable openings and traditional persianes alacantines, allowing these galleries to be used comfortably throughout the year.
The structure is resolved with ceramic load-bearing walls that establish a clear, regular order. The openings follow a principle of balance, generating a steady rhythm on the façade. At the centre, a circular staircase articulates the whole and organises circulation.
The ground floor concentrates everyday life and opens to the garden through a porch that acts as a habitable threshold. The openings allow it to transform: a gallery in winter, an open outdoor space in summer. The main bedroom is placed in a separate bay to ensure privacy.
The first floor is dedicated to the children, with their own living area that encourages autonomy. The adjacent volumes have independent access, allowing them to operate as separate dwellings if needed.
Materiality roots the house to its context: ceramic masonry, reclaimed stone, and timber joinery define a sober, traditionally inspired character. The lower façade, largely opaque, offers glimpses of the garden and reinforces the introspective nature of the home.
Alcover, Tarragona, 2022-Ongoing
Private client
With Carla Bria
PROJECTS









































